
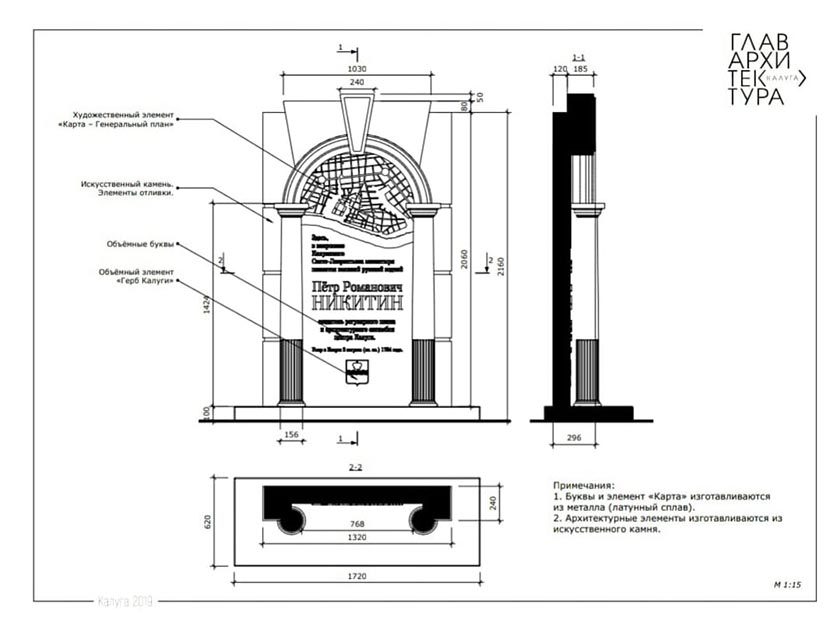
Это будет отдельный, не кричащий, памятный знак, достойный великого зодчего, не мемориальная доска. Предполагаемая высота – два метра, вверху стелы схематично изображен генеральный план Калуги и изгиб Оки. Портретов Петра Никитина не сохранилось. Подобрана шрифтовая композиция для надписи. Она поясняет: «Здесь в некрополе Калужского Свято-Лаврентьева монастыря покоится великий русский зодчий Петр Романович Никитин, создатель регулярного плана архитектурного ансамбля центра Калуги». Указана дата смерти – 4 августа 1784 года (точная дата рождения зодчего неизвестна). Цвет мемориальной стелы будет светлым. «Я рассматриваю этот памятный знак еще и как начало большой работы по увековечиванию памяти архитекторов-созидателей», отметил Алексей Комов. Над концепцией памятного знака кроме него работали также дизайнер Юрий Бучарский, архитектор Михаил Белозеров, краевед Валентина Фридгельм.

Эскиз памятного знака проходит сейчас расчет у технологов. В планах калужских краеведов и города – установление мемориальной доски на улице Никитина, которая поясняла бы, что она названа именно в честь зодчего. Переименовывать улицу не будут.

Газета
Прямая линия












